Home  
Map  
Home
Up
Products
Services
FAQ
Support
App Notes
Policies

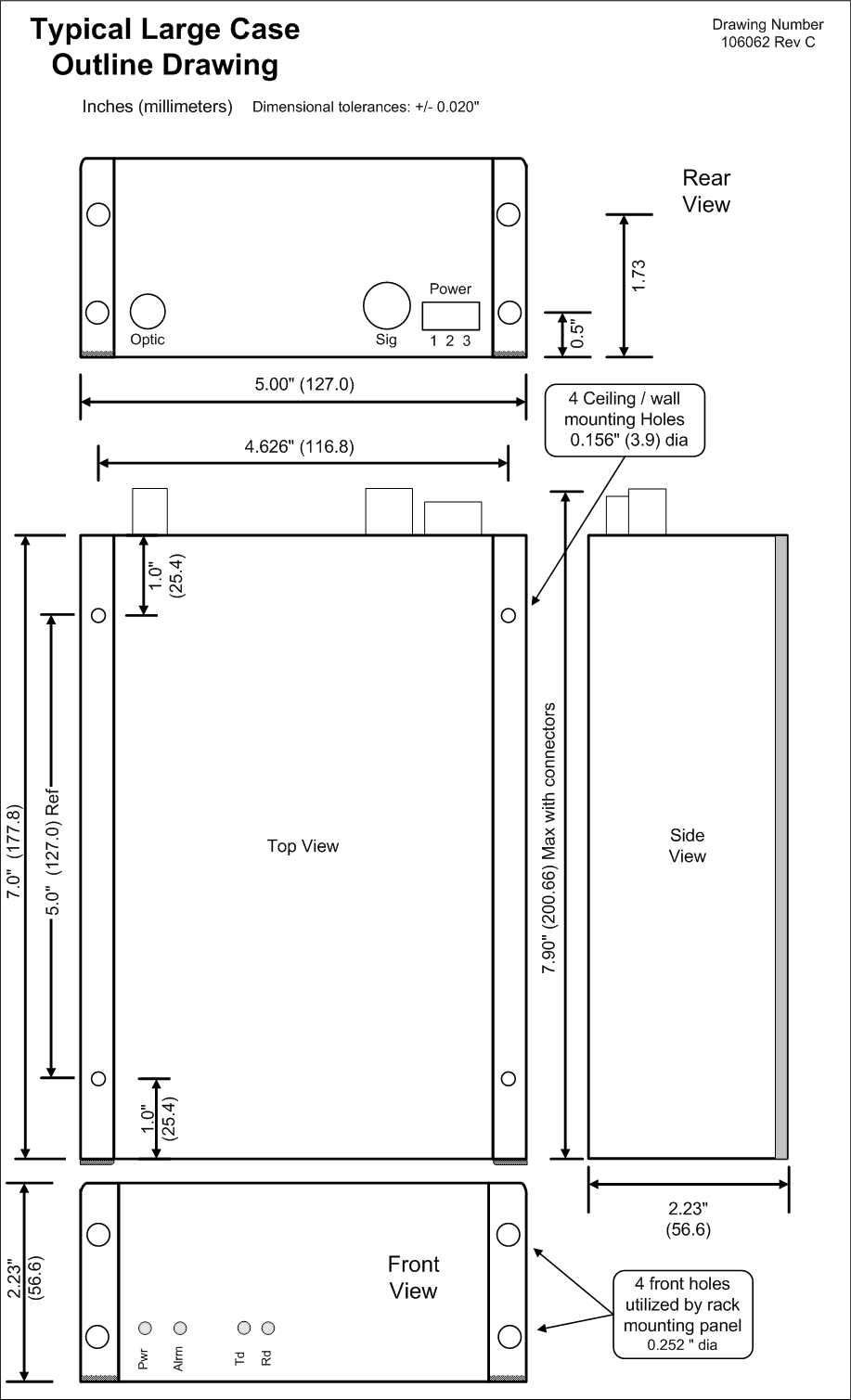
Large Case Outline

GIF Version                      PDF Version

 Click for GIF Version

Products with the Large case outline occupy two positions in the rack mounting panel.
Example product in this configuration is the PS-1260, 6 Amp power supply.


 


LuxLink

Voice: 1-516-931-2800

Email:  Contact Us